Fensterbau
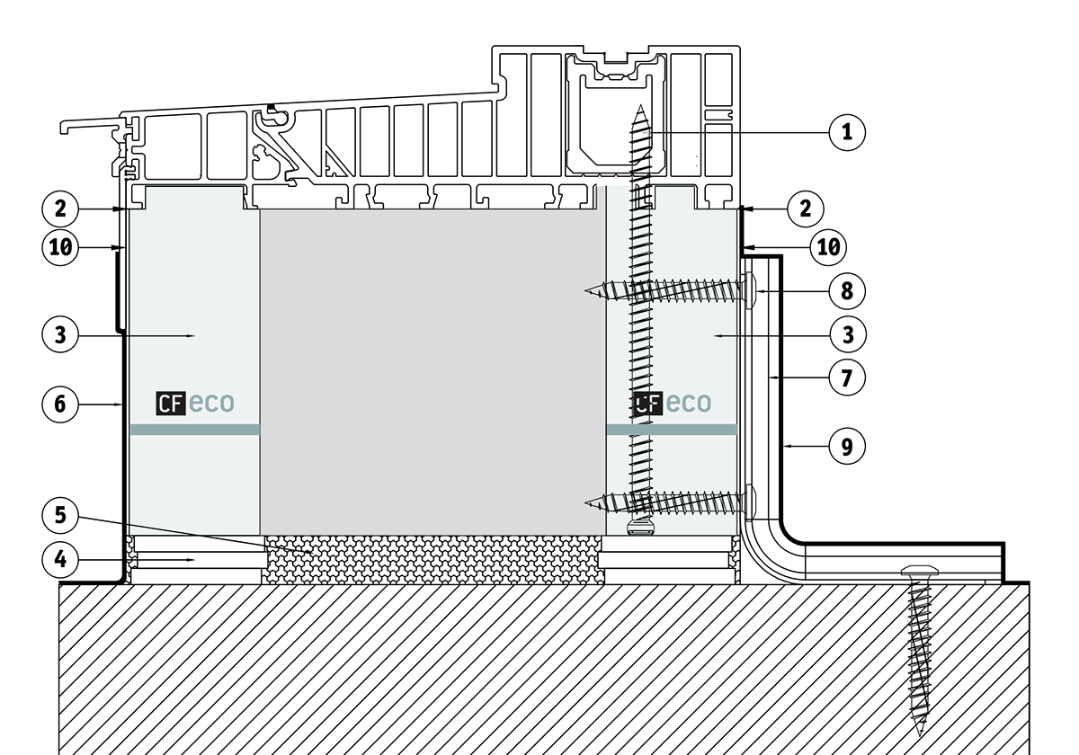
Unterbau für Hebeschiebeanlagen
Der Trend zu immer größeren Hebeschiebeanlagen führt zu entsprechend höheren Gewichten, die auf das Unterbaudämmprofil abgetragen werden müssen.
Der Hebeschiebeunterbau vereint Festigkeit und ausgezeichnete Wärmedämmung durch zwei Tragschichten und einen Dämmkern bei sehr geringem Eigengewicht. Durch die zwei dicken Tragschichten auf der Innen- und Außenseite kann eine Verschraubung von oben und unten ohne Probleme erfolgen. Die Kräfte werden so problemlos in das Mauerwerk abgeleitet.
Wirtschaftlich und Sicher
Details
Montagevariante mit hochdämmenden Unterbaudämmprofilen passend zu allen Hebeschiebetürschwellen.
- Fensterrahmenschraube 7,5mm – kein Vorbohren im Unterbauprofil erforderlich; Abstand und Verankerungslänge nach statischem Erfordernis oder RAL-Richtlinie
- Fugenverklebung mit MS-Polymer Kleber oder Klebeband
- Tragschichten 40mm CFeco
- Unterlegplatten
- Fugendämmung laut Stand der Technik
- Abdichtung außen nach Stand der Technik, zum Beispiel Flüssigkunststoff laut Eignungsliste, Bitumenflämmbahn
- Montagewinkel laut Statik
- Fensterrahmenschraube 7,5mm Flachkopf
- Abdichtung innen nach Stand der Technik
- PVC Deckschicht
- Die zwei massiven Tragschichten innen und außen leiten das schwere Gewicht von Hebeschiebetüren sicher in den Baukörper ab.
- In die breiten Tragschichten kann auch der Montagewinkel robust verschraubt werden.
- Winddruck, Windsog und ETB Kräfte werden durch die Konterfräsung und den Montagewinkel aufgenommen.
Abmessungen:
Oberflächen:
Profilierung:
Abmessungen
COMPACFOAM Unterbaudämmprofile sind nicht nur in der Standardlänge 2350mm erhältlich, sondern in jeder Wunschlänge bis 6m.
Beschichtung
Auf Wunsch wird der Unterbau ein- oder beidseitig mit einer PVC-Beschichtung versehen.
Flexiblität
Höchste Flexiblität erreichen Sie mit dem Kauf von Platten, die Sie in Ihrer Werkstatt selbst zuschneiden und profilieren.
Profilierung/Kontur
Bei der Profilierung sind keine Grenzen gesetzt. Individuelle Werkzeuge sind nicht zwingend erforderlich, was uns erlaubt, auch Kleinmengen kostengünstig zu profilieren. Wir liefern den individuellen Unterbau für IHRE Hebeschiebetüre.
Mittels Stapelkontur (Nut-Feder-Steckverbindung) können unterschiedliche Einstandshöhen flexibel erreicht werden.
Außerdem ist die Bearbeitung mit unserer CNC-5-Achs-Fräse bis 4700x600x300mm in einem Stück für hochkomplexe und individuelle Anforderungen möglich.
COMPACFOAM lässt sich problemlos mit handelsüblichen Sägen wie Kreissägen, Druckbalkensägen oder Handkreissägen zuschneiden. Wichtig ist dabei die Verwendung von Sägeblättern mit großem Zahnabstand und freiem Spanraum.
Für das Schneiden von COMPACFOAM empfehlen wir Sägeblätter mit Flachzahn und Spandickenbegrenzer und sehr großer Zahnteilung. Optimale Schnittergebnisse erreichen Sie bei 2000 U/min.
Sägeblattempfehlung
Mit Hilfe eines neu entwickelten Verfahrens, der Partikeltechnologie, können wir den Verschnitt von COMPACFOAM zu 100 % recyceln. CFeco200, das Ergebnis dieses Prozesses, bietet dieselben guten Eigenschaften wie COMPACFOAM: hohe Festigkeit bei ausgezeichneter Wärmedämmung.
Die beiden Tragschichten der COMPACFOAM-Hebeschiebeunterbauten werden standardmäßig in CFeco200 produziert. Somit verwenden Sie ein Unterbausystem, welches zu zu einem Großteil aus recyceltem Material entsteht. Sollten Sie sich für die Vollkernvariante entscheiden (Unterbau ohne Dämmkern), arbeiten Sie sogar mit einem Unterbau aus 100 % Recyclingmaterial.
Sie erhöhen jedenfalls den Recyclinganteil im Bau und verbessern die Ökobilanz Ihres Projekts und Unternehmens. Denn Umweltschutz heißt im Kreislauf halten statt teuer entsorgen.
1. Luft- und Wasserdichtheit
2. Montage des Unterbaus
3. Einbau
4. Abdichtung außen
Zur Abdichtung können folgende Materialien verwendet werden:
Eine Abdichtung mit beflämmter Bitumenbahn ist bei sachgerechnter Ausführung ebenfalls möglich.
Weitere Informationen zur Abdichtung finden Sie hier.
Zum Datenblatt









