Fensterbau
Vorwandmontage (Klima Konform)
Mit dem COMPACFOAM Klima Konform System können Fenster und Türen in der Dämmebene (WDVS), wärmebrückenfrei montiert werden. Somit wandern die Fenster und Türen nach außen in die Wärmedämmung.
Diese Methode nennt sich Vorwandmontage. Eine Montage in der Dämmebene hat mehrere Vorteile. Zum einen sieht es optisch besser aus und bringt mehr Licht in die Räume. Die dadurch gewonnene Sonnenenergie führt zu solaren Wärmegewinnen und verbessert die Gebäudeenergiebilanz. Außerdem werden die isothermen Verläufe im Übergang zwischen Fenster und Wandsystem positiv beeinflusst.
Wirtschaftlich und Sicher
Details
seitlicher Anschluss
unterer Anschluss
Toleranz
Länge: +5/-0 mm, Verbiegung <3 mm freistehend
Material
CF125 oder CFeco200
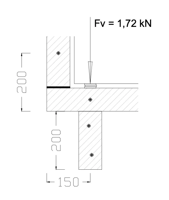
Ableitung der vertikalen Lasten:
Jeder Fensterkonstruktion wird durch punktuelle Auflagerklötze in der Zarge aufgelagert. Unter diesen Auflagerpunkten konzentriert sich die gesamte Eigenlast des Fensters und muss dort sicher in die Wand abgeleitet werden.
Ausführung 1
Kraft je Befestigungspunkt < 0,86 kN
Ausführung 2
1 zusätzlicher Befestigungspunkt
Kraft je Befestigungspunkt < 1,23 kN
Ausführung 3
2 zusätzliche Befestigungspunkte
Kraft je Befestigungspunkt < 1,72 kN
Ab einer Ausladung des Klima Konform Profils > 100 mm muss eine Konsole (Ausführung 3) gesetzt werden. Die individuellen Auflagekräfte an den Befestigungspunkten können mit dem COMPACFOAM-Befestigungsrechner ermittelt werden. Kontaktieren Sie uns, um Ihre individuelle Bemessung zu erhalten.
Ableitung der horizontalen Lasten:
Horizontale Lasten in Fensterkonstruktionen entstehen aufgrund Wind oder Stoss auf die Verglasungsscheiben. Von dort werden sie in die Rahmenkonstruktion weitergeleitet. Über die seitliche Verschraubung wird diese Last punktförmig in die Montagezarge eingeleitet.
unterer Anschluss
seitlicher Anschluss
seitlicher Anschluss bei weiter Ausladung
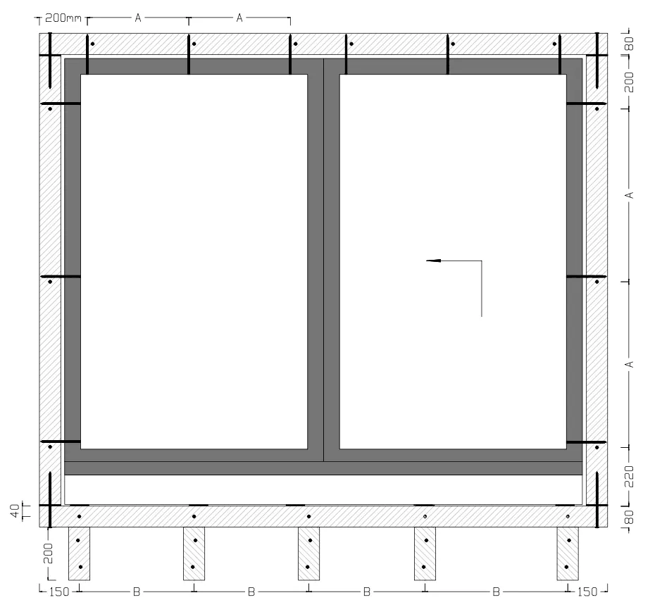
A….max. Verschraubungsabstand oben und seitlich <700mm bzw. nach statischer Erforderung
B….max. Abstand Stützen unten <500mm, Anordung unter Eckpunkten des Festfeldes Fensterrahmenschraube Zylinderkopf ø 7,5mm, Abstand und Verankerungslänge im Untergrund nach statischen Erfordernis oder RAL Richtlinie. Kein Vorbohren im Unterbaudämmprofil erforderlich!
unterer Anschluss
Verschraubung von unten
unterer Anschluss
Verschraubung von oben
seitlicher Anschluss
unterer Anschluss
A….max. Verschraubungsabstand <700mm
Fensterrahmenschraube Zylinderkopf
ø 7,5mm, Abstand und Verankerungslänge im Untergrund
nach statischen Erfordernis oder RAL Richtlinie. Kein Vorbohren im Unterbaudämmprofil erforderlich!
Toleranz
Länge: +2/-2mm Frästoleranzen: +/-0,3 mm Verbiegung <3mm freistehend Passfedern +0,0/-0,5mm
Material
CF125 oder CFeco200
1. Zuschneiden der Profile
2. Kleber auftragen
3. Vorbohren und Verschrauben
4. Positionieren und Ausrichten der restlichen Riegel
Vielfalt des Klima Konform-Systems
Das Klima Konform-System bietet maßgeschneiderte Sonderlösungen für anspruchsvolle Bauprojekte. Ob flexible Querschnitte, spezielle Formen, integrierte Dämmkeile oder individuelle Leibungslösungen – nahezu jede Anforderung kann realisiert werden. Speziell gefertigte Schrägprofile im oberen Bereich bieten zudem optimalen Schutz vor Regenwasser während der Bauphase.
Die Produkte sind verzugsfrei und verbiegungsfrei, was eine hervorragende Stabilität garantiert. Dank des geringen Gewichts bei gleichzeitig hoher Festigkeit ist zudem eine einfache und schnelle Montage möglich.
Diese Vielfalt an Möglichkeiten sorgt für eine perfekte Anpassung an jedes Projekt und setzt neue Maßstäbe in Funktionalität, Effizienz und Qualität.
Eine präzise Fertigung wird durch modernste Technologien gewährleistet:
Bohren Sie den unteren Riegel 150 mm vom Riegelende und setzen Sie folgende Bohrungen im Abstand von je 700 mm.
Verwenden Sie für Eck- und Stoßverklebungen MS-Polymer, um luft- und schlagregendichte Verbindungen herzustellen.
Verwendet werden 7,5 mm Fensterrahmenschrauben mit Flachkopf. Die Schrauben sind in Längen von 42 mm bis 400 mm erhältlich.
Einschraubtiefe
Die Einschraubtiefe hängt maßgeblich vom Material des Baukörpers ab, da unterschiedliche Werkstoffe unterschiedliche Festigkeiten und Eigenschaften besitzen. Harte Materialien wie Stahl oder Beton benötigen geringere Einschraubtiefen, während weiche Materialien wie Porenbeton oder leichte Ziegel eine größere Verankerungstiefe erfordern, um optimale Stabilität zu gewährleisten. Siehe Tabelle weiter unten.
Vorbohren
Der Vorbohrdurchmesser richtet sich nach dem Matieral des Baukörpers. Besonders bei leichten Baukörpern sollte auf das Bohren mit Schlag verzichtet werden, um Materialbeschädigungen zu vermeiden. Details entnehmen Sie bitte der Tabelle weiter unten.
Schraubenlänge
Die Schraubenlänge wird durch die Ausladung des Vorwandmontagesystems (Tiefe) und die Materialbeschaffenheit des Baukörpers (erforderliche Einschraubtiefe) bestimmt.
Für die Bohrtiefe gilt: Einschraubtiefe + 10 mm.
Bohr- und Verschraubungstabelle
COMPACFOAM lässt sich problemlos mit handelsüblichen Sägen wie Kreissägen, Druckbalkensägen oder Handkreissägen zuschneiden. Wichtig ist dabei die Verwendung von Sägeblättern mit großem Zahnabstand und freiem Spanraum.
Für das Schneiden von COMPACFOAM empfehlen wir Sägeblätter mit Flachzahn und Spandickenbegrenzer und sehr großer Zahnteilung. Optimale Schnittergebnisse erreichen Sie bei 2000 U/min.
Sägeblattempfehlung
Die ETB-Richtlinie für absturzsichere bodentiefe Bauteile fordert eine Lastaufnahme an den relevanten Befestigungspunkten von mindestens 2,8 kN. Absturzsichernde Verglasungen dienen dazu, Personen vor dem Sturz auf eine tiefere Ebene zu schützen. Sie sollen bei einem Anprall ein geringes Verletzungsrisiko bieten und sicherstellen, dass der darunterliegende Verkehrsraum nicht durch Glasbruch gefährdet wird. Beispiele für solche Verglasungen sind Brüstungen, Treppengeländer aus Glas und bodentiefe Fenster.
Das Klima Konform-System erfüllt sämtliche dieser Anforderungen und bietet dadurch höchsten Schutz und Sicherheit für absturzsichere Elemente.
Bei Elementen mit absturzsichernden Eigenschaften (ETB) ist – abhängig von der jeweiligen Kategorie (A / C2 / C3) – das Fensterprofil zusätzlich mit einer zweiten Schraube (Zwillingsschraube) zu befestigen. Der Schraubenabstand beträgt 80 mm, der Randabstand mindestens 40 mm zur Außenseite des Vorwandmontageprofils, und die Einschraubtiefe in das Vorwandmontageprofil muss 80 mm betragen.
In Österreich sind die Befestigungsabstände bei allen Fenstertypen einheitlich mit 700mm angegeben. Im RAL Leitfaden (DE) sind es bei Kunststofffenstern max 700mm und bei Holz- und Alu-Fenstern max. 800mm. Grundsätzlich sind nationale bzw. Vorgaben einzuhalten!
Toleranz
Länge: +2/-2mm Frästoleranzen: +/-0.3mm Verbiegung <3mm frei stehend Passfedern +0,0/-0,5mm
Material
CF125 oder CFeco200
Die Prüfung des Einbruchschutzes erfolgt nach der ÖNORM B 5338 und DIN EN 1627-1630 und umfasst folgende Anforderungen:
Widerstand gegen statische Belastung.
Die Tragfähigkeit der Konstruktion wird durch Drucklasten von 3000 N RC2 und 6000 N RC3 auf alle kritischen Punkte geprüft.
Widerstand gegen dynamische Belastung
Ein Pendelschlagversuch mit einem 50 kg schweren Zwillingsreifen testet die Stabilität des Systems unter dynamischen Kräften an den relevanten Schwachstellen.
Widerstand gegen manuelle Einbruchsversuche
In einem zweistufigen Test werden die kritischen Bereiche mit standardisierten Einbruchswerkzeugen auf ihre Sicherheit geprüft. Der erste Versuch erfolgt zwischen dem Fensterrahmen und dem Klima-Konform-System. Ergänzend wird der Angriff auf die Anbindung des Vorwandmontagesystems an den Wandkörper durchgeführt.
Schallschutz – Klima Konform
Bei der Vorwandmontage spielt Schallschutz eine zentrale Rolle, insbesondere in Bereichen wie Fensterbau, Fassadenbau oder Metallbau. Durch den gezielten Einsatz innovativer Materialien und Techniken lassen sich Schallbrücken minimieren und optimale akustische Eigenschaften für das Gebäude gewährleisten.
Schalldämmende Materialien. Hochverdichtete Materialien wie COMPACFOAM bieten hervorragende akustische Eigenschaften. Die hohe Steifigkeit minimiert Schallbrücken effektiv und sorgt für eine nachhaltige Schalldämmung des Gebäudes.
Entkoppelung. Eine mechanische Entkopplung der Konstruktion von der Wand reduziert die Körperschallübertragung auf ein Minimum und optimiert die akustische Performance des Gebäudes.
Wärmeschutz: fRsi-Wert in der Vorwandmontage mit Klima Konform
Schimmelpilzbildung entsteht oft durch zu niedrige Temperaturen an der inneren Laibungsfläche. Die DIN 4108-2 definiert den Temperaturfaktor fRsi, der das Verhältnis der Oberflächentemperatur zur Innen- und Außentemperatur beschreibt. Ein Wert von mindestens 0,7 gewährleistet, dass die Temperatur hoch genug bleibt, um Schimmelbildung zu vermeiden.
Im Normklima liegt die kritische Oberflächentemperatur bei < +12,6 °C, womit der Nachweis gegen möglichen Schimmelbildung erfüllt ist.
Vorteile der Montage mit Klima Konform
Das Vorwandmontagesystem Klima Konform verbessert die Temperaturverläufe zwischen Wandsystem und Fenster. Die Isothermen zeigen deutlich die Vorteile der Vorwandmontage im Vergleich zur herkömmlichen Montage.
Mit Klima Konform wird ein optimaler Wärmeschutz erreicht, der die fRsi-Anforderungen erfüllt und Schimmelbildung vermeidet
Rahmenbedingungen
Außentemperatur: -5 °C
Innentemperatur: +20 °C
Relative Luftfeuchtigkeit außen: 80 %
Relative Luftfeuchtigkeit innen: 50 %
Farbmarkierungen der Isothermen:
Mit Hilfe eines neu entwickelten Verfahrens, der Partikeltechnologie, können wir den Verschnitt von COMPACFOAM zu 100 % recyceln. CFeco200, das Ergebnis dieses Prozesses, bietet dieselben guten Eigenschaften wie COMPACFOAM: hohe Festigkeit bei ausgezeichneter Wärmedämmung.
Das Klima Konform System können Sie auch in der nachhaltigen Recycling-Variante CFeco200 bestellen.
Sie erhöhen jedenfalls den Recyclinganteil im Bau und verbessern die Ökobilanz Ihres Projekts und Unternehmens. Denn Umweltschutz heißt im Kreislauf halten statt teuer entsorgen.






















